Витрина нейтральная (неохлаждаемая) настольная Carboma A59 N 1,2-1 (фронт стандартный цвет) используется на предприятиях общественного питания и торговли для демонстрации и кратковременного хранения тортов, пирожных и других кондитерских изделий. Модель оснащена закаленными стеклопакетами, гнутым фронтальным стеклом, 2 регулируемыми полками-решётками, встроенной ручкой и регулируемыми ножками.
Корпус выполнен из стали, термоизоляция — из пенополиуретана, экспозиционная поверхность — из нержавеющей стали. Фронтальная часть витрины оформлена в стандартном цветовом решении, предусмотренном производителем.
Ключевые особенности:
-
Универсальное исполнение — сочетается с любыми интерьерными решениями;
-
Цифровой контроллер — для мониторинга и настройки условий хранения;
-
Боковая LED-подсветка — подчёркивает презентабельность продукции;
-
Гнутый стеклопакет и задние раздвижные дверцы — удобный доступ и эффектный внешний вид;
-
Встроенный выпариватель конденсата — облегчает уход и эксплуатацию;
-
Регулируемые по высоте ножки — адаптация под любую поверхность;
-
Нагрузка на каждую полку-решётку — до 14 кг;
-
Угол наклона полок — 5°, для более выгодной демонстрации;
-
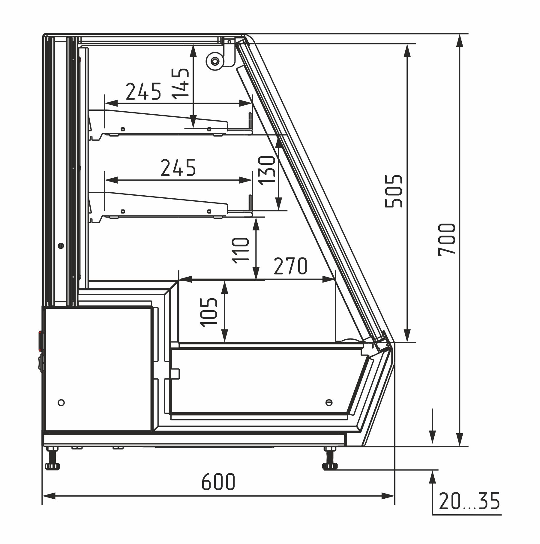
Высота выкладки: до 150 мм на нижнем поддоне, до 100 мм на полках.
-
Габариты (без боковин): длина — 1166 мм, глубина полки — 245 мм;
-
Условия эксплуатации: температура воздуха — от 12 до 25 °С, влажность — до 60%.
Carboma A59 N 1,2-1 — это нейтральная витрина, сочетающая эффектную презентацию, надёжную конструкцию и лаконичный дизайн. Отличный выбор для магазинов, кафе и кондитерских, где важно эстетично представить продукцию без необходимости охлаждения.
Изображение товара, представленного на фото, может отличаться от его фактического вида.